Giải Bài 4 trang 60 sách bài tập toán 7 tập 1 – Chân trời sáng tạo

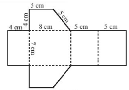
Tạo lập hình lăng trục đứng tứ giác có các số đo như Hình 7. a) Cho biết chiều cao của hình lăng trụ. b) Tạo lập hình lăng trụ.

Đề bài

Tạo lập hình lăng trục đứng tứ giác có các số đo như Hình 7.

a) Cho biết chiều cao của hình lăng trụ.

b) Tạo lập hình lăng trụ.

 

Lời giải chi tiết

Vui lòng nhập mật khẩu để tiếp tục

test321

a) Hình 7 mô tả hình lăng trụ đứng tứ giác có các mặt bên là hình chữ nhật có kích thước là 5 cm, 7 cm và đáy là hình thang vuông có kích thước là 5 cm, 8 cm và 4 cm.

Vậy chiều cao của hình lăng trụ là 7 cm.

b) Trên tấm bìa vẽ 2 hình thang và 4 hình chữ nhật như dưới đây, rồi gấp theo các nét đứt ta được hình cần tạo lập.

 

TẢI APP ĐỂ XEM OFFLINE