5. Bài 5. Bản vẽ nhà

Khi xây dựng một ngôi nhà, người thợ sử dụng bản vẽ nhà để làm gì?

Lựa chọn câu để xem lời giải nhanh hơn

CH trang 25

Khi xây dựng một ngôi nhà, người thợ sử dụng bản vẽ nhà để làm gì?

Phương pháp giải:

Dựa vào hiểu biết của bản thân.

Lời giải chi tiết:

Khi xây dựng một ngôi nhà, người thợ sử dụng bản vẽ nhà để dự toán chi phí và xây dựng ngôi nhà đúng như mong muốn.

CH trang 26

Quan sát Hình 5.1 và cho biết: Bản vẽ nhà gồm mấy hình biểu diễn? Tên gọi các hình biểu diễn đó là gì?

Phương pháp giải:

Dựa vào hình 5.1 để xác định các hình biểu diễn, tên gọi của các hình biểu diễn đó.

Lời giải chi tiết:

Bản vẽ nhà gồm 3 hình biểu diễn, đó là:

  • Mặt đứng.
  • Mặt bằng (hình cắt bằng).
  • Mặt cắt.

CH trang 27

Những kí hiệu nào trong bảng kí hiệu quy ước được sử dụng ở Hình 5.1?

Phương pháp giải:

Quan sát bảng 5.1 để xác định các quy ước trong hình 5.1

Lời giải chi tiết:

– Cửa đi một cánh tên mặt đứng và mặt bằng.

– Cửa đi bốn cánh trên mặt bằng.

– Cửa sổ đơn hai cánh trên mặt bằng.

– Sân.

CH trang 28 LT

Đọc bản vẽ nhà Hình 5.3 theo trình tự các bước ở Bảng 5.2.

 

Phương pháp giải:

Dựa vào hình 5.3 để đọc bảng vẽ nhà theo mẫu bảng 5.2

Lời giải chi tiết:

1. Khung tên

Tên gọi ngôi nhà: Nhà mái bằng 1 tầng.

Tỉ lệ bản vẽ: 1:50

Nơi thiết kế: Công ty xây dựng dân dụng

2. Hình biểu diễn

Tên gọi các hình biểu diễn của ngôi nhà: Mặt đứng, mặt bằng, mặt cắt.

Vị trí đặt các hình biểu diễn: 

Mặt đứng ở vị trí hình chiếu đứng.

Mặt bằng ở vị trí hình chiếu bằng.

Mặt cắt ở vị trí hình chiếu cạnh.

3. Kích thước

Kích thước chung của ngôi nhà: 13800 x 7800 x 4500

Kích thước của từng phòng: 

Phòng khách: 5700 x 3600 mm

Phòng ngủ 1: 4650 x 4000 mm

Phòng ngủ 2: 4650 x 4000 mm

Bếp + phòng ăn: 5100 x 3600 mm

Phòng vệ sinh: 3300 x 1500 mm

Hiên nhà: 7800 x 1600 mm

Sân nhà: 7800 x 1400 mm

Kích thước của từng loại cửa: 

Cửa đi đơn 4 cánh: 2200 x 1600 mm

Cửa đi đơn 1 cánh (phòng ngủ):  800 mm

Cửa đi đơn 1 cánh (phòng vệ sinh): 700 x 650 mm

Cửa sổ đi đơn 2 cánh: 1300 mm

Cửa sổ đi đơn 2 cánh (nhà vệ sinh): 600 mm

4. Các bộ phận chính của ngôi nhà

Số phòng: 5 phòng

Số lượng cửa đi, cửa sổ: cửa đi: 5 cái, cửa sổ: 5 cái

Loại cửa được sử dụng: cửa đi đơn 4 cánh, cửa đi đơn 1 cánh, cửa sổ đi đơn 2 cánh.

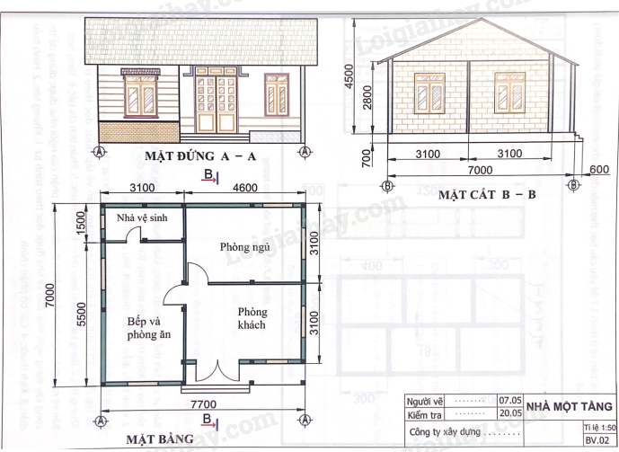
CH trang 28 VD

Sưu tầm của một bản vẽ nhà đơn giản và đọc bản vẽ đó.

Phương pháp giải:

Sưu tầm một bản vẽ nhà đơn giản rồi đọc bản vẽ nhà đó theo mẫu bảng 5.2

Lời giải chi tiết:

1. Khung tên

– Nhà một tầng

– Tỉ lệ 1:150

– Công ty xây dựng….

2. Hình biểu diễn

– Mặt bằng

– Mặt đứng A – A

– Mặt cắt B – B

3. Kích thước

– Kích thước chung: Dài 7700, rộng 7000, cao 5200 (tính cả chiều cao nền nhà).

– Kích thước từng bộ phận:

  • Phòng khách: 4600 x 3100.
  • Phòng ngủ: 4600 x 3100.
  • Bếp và phòng ăn: 7000 x 3100 (kể cả nhà vệ sinh: 3100 x 1500).

4. Các bộ phận chính

– Ba phòng.

– 1 cửa đi đơn 2 cánh; 3 cửa đi 1 cánh; 7 cửa sổ đơn.

– Bậc thềm (2 bậc)

TẢI APP ĐỂ XEM OFFLINE