4. Bài 9. Quy trình gia công chi tiết

Hãy kể tên các công việc cần thực hiện để gia công được chi tiết trục bậc trên hình 9.1.

Lựa chọn câu để xem lời giải nhanh hơn

Hãy kể tên các công việc cần thực hiện để gia công được chi tiết trục bậc trên hình 9.1.


Phương pháp giải:

Quan sát hình 9.1 để trả lời câu hỏi.


Lời giải chi tiết:

Sử dụng dao tiện để gia công bề mặt trục bậc.

Sử dụng dao phay để gia công các rãnh trên trục bậc.

Sử dụng dao khoan để gia công lỗ trên trục bậc.


Câu hỏi tr41 CH1

Quy trình công nghệ gia công chi tiết gồm có những bước nào? Theo em, bước nào sẽ ảnh hưởng lớn tới chất lượng bề mặt gia công chi tiết?


Phương pháp giải:

Vận dụng kiến thức mục I trang 41 SGK để trả lời câu hỏi.

Lời giải chi tiết:

Nghiên cứu bản vẽ chi tiết

Lựa chọn phôi

Xác định trình tự các nguyên công

Lựa chọn thiết bị, dụng cụ gia công

Xác định chế độ gia công


Câu hỏi tr41 CH2

Phân biệt quy trình công nghệ gia công chi tiết với quy trình chế tạo cơ khí.


Phương pháp giải:

Liên hệ kiến thức Bài 2 để trả lời câu hỏi.


Lời giải chi tiết:

-Quy trình công nghệ gia công là các bước cần tuân thủ để thay đổi hình dạng, kích thước,… của phổi hoặc bán thành phẩm.

-Quy trình chế tạo cơ khí là trình tự cần tuân theo để thực hiện công việc biến đổi nguyên liệu đầu vào thành các chi tiết, các bộ phận, các máy móc thiết bị hoặc các hệ thống cơ khí,…


Câu hỏi tr45 CH1

Bản vẽ hình 9.1 cho ta biết những thông tin gì? Những thông tin này phục vụ cho công việc nào của lập quy trình công nghệ gia công?


Phương pháp giải:

Quan sát hình 9.1 và vận dụng kiến thức mục II trang 42 SGK để trả lời câu hỏi.


Lời giải chi tiết:

Các đặc điểm cơ bản của chi tiết cần gia công qua nghiên cứu bản vẽ chi tiết trên hình 9.1:

– Sản phẩm gia công có dạng trục với các bề mặt tròn xoay, phù hợp với phương pháp gia công cắt gọt là tiên.

– Chi tiết được chế tạo từ vật liệu là thép carbon.

– Yêu cầu về độ chính xác gia công và chất lượng bề mặt của chi tiết là không cao.

– Số lượng gia công it, phù hợp với hình thức tổ chức sản xuất đơn chiếc.

Những thông tin này phục vụ cho công việc lựa chọn phôi, xác định trình tự các nguyên công, lựa chọn thiết bị và dụng cụ gia công và xác định chế độ gia công của lập quy trình công nghệ gia công.


Câu hỏi tr45 CH2

Nêu trình tự các bước gia công chi tiết trục bậc hình 9.1.


Phương pháp giải:

Quan sát hình 9.1 và vận dụng kiến thức mục II trang 42 SGK để trả lời câu hỏi.


Lời giải chi tiết:

Trình tự các bước gia công chi tiết trục bậc hình 9.1:

1. Tiện mặt đầu.

2. Tiện kích thước trụ ngoài ∅45*40mm

3. Tiện vát mép 2*45 ⁰mm

4. Đảo đầu và tiện mặt phẳng đạt kích thước chiều dài 60 mm

5. Tiện kích thước trụ ngoài ∅35*20mm

6. Tiện vát mép 2*45 ⁰mm

7. Tiện cắt rãnh 2*2mm


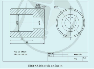
Câu hỏi tr45 CH3

Hãy lập quy trình công nghệ gia công chi tiết ống lót hình 9.5.


Phương pháp giải:

Quan sát hình vẽ để trả lời câu hỏi.


Lời giải chi tiết:

Nghiên cứu bản vẽ chi tiết

Lựa chọn phôi

Xác định hình thành kiến thức, kĩ năng trình tự các nguyên công

Lựa chọn thiết bị, dụng cụ gia công

Xác định chế độ gia công


Câu hỏi tr45 CH4

Tìm hiểu về quy trình công nghệ gia công một chi tiết đơn giản mà em biết.


Phương pháp giải:

Tìm hiểu và vận dụng kiến thức thực tế để trả lời câu hỏi.


Lời giải chi tiết:

Tìm hiểu qua sách báo, internet một số chi tiết đơn giản.


TẢI APP ĐỂ XEM OFFLINE

CÔNG NGHỆ CHĂN NUÔI

CÔNG NGHỆ CƠ KHÍ